












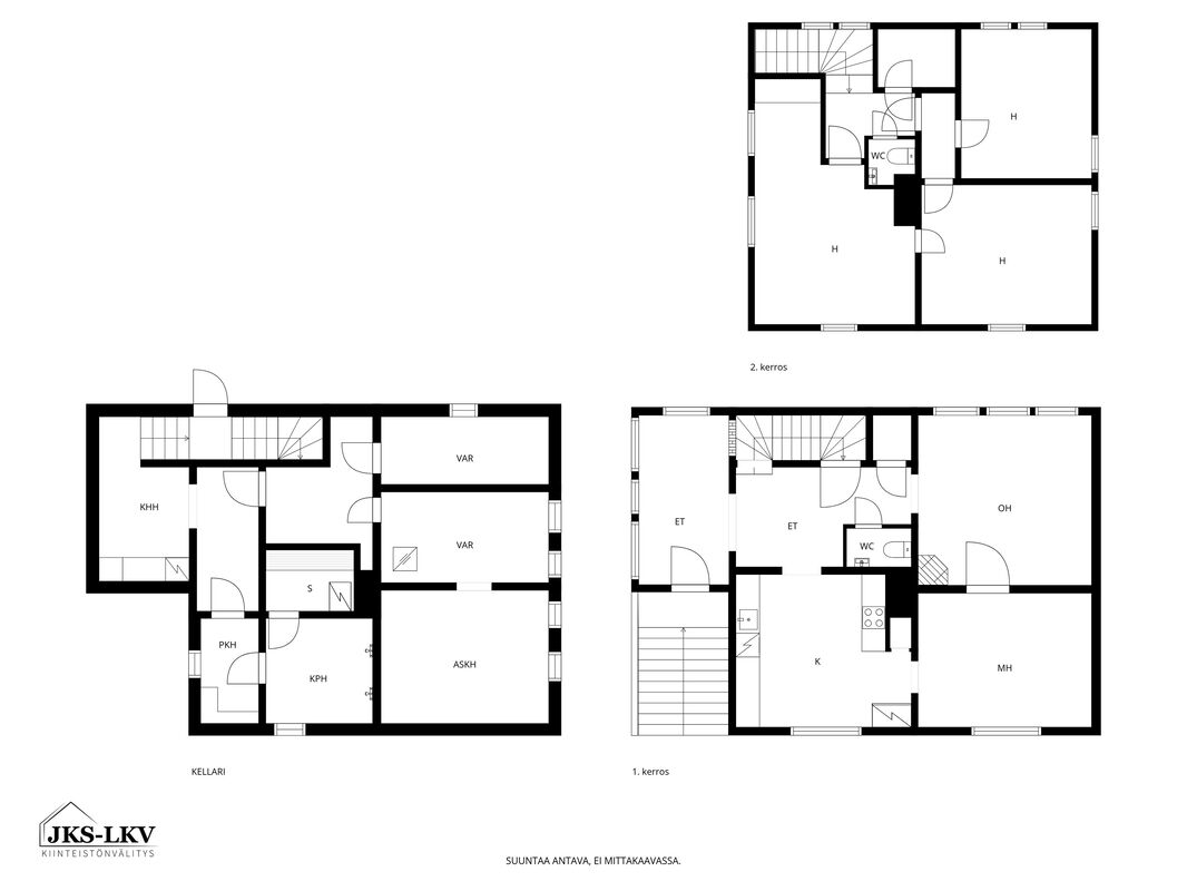
Yläkerrassa kolme makuuhuonetta ja wc
Saunaosasto kellarissa






















Yläkerrassa kolme makuuhuonetta ja wc
Saunaosasto kellarissa









Omakotitalo Ak: 2h,k,wc,et Yk: 3mh,wc,vinttikomero Kellari: s,kph,khh,kellaritiloja
Mäntykatu 25, Myllyhaka, Nokia
Hinta
154 000 €
Koko
132 m² / 204 m²
Vuosi
1960
Lapsiystävälliseltä alueelta vapautumassa omalla tontilla oleva vuonan 1960 valmistunut ryhdikäs puutalo. Makuuhuoneita on neljä, keittiö on tilava ja kellarissa on saunaosaston lisäksi kodinhoitotila ja runsaasti säilytystiloja.
Remontteja on talossa tehty runsaasti vuosien varrella. 2000-luvulla on mm. uusittu käyttövesi- ja viemäriputket sekä salaojat uusittu, samoin ikkunat ja katto. Keittiö on uudistettu vuonna 2006 ja yläkerrassa on otettu vinttitiloja asuinkäyttöön.
Talossa on sähkölämmitys, patterit ja lattialämmitys sekä ilmalämpöpumppu. Olohuoneessa on varaava takka.
Tasainen 863 m2:n suojaisa kulmatontti.
Sijainti koulujen ja päiväkotien läheisyydessä, Nokian keskustaan noin 1 km. Lähikauppa ja bussipysäkit on vieressä ja rautatieasemalle kävelee 10 minuutissa.
Sovi oma esittely!
Myynti ja lisätiedot:
Jutta Saikkonen |0451526191
jutta@jks-lkv.fi
JKS-Kiinteistönvälitys LKV Oy | www.jks-lkv.fi
| Kohdenumero | 21038871 |
|---|---|
| Sijainti | Mäntykatu 25, 37100 Nokia |
| Huoneistoselitelmä | Ak: 2h,k,wc,et Yk: 3mh,wc,vinttikomero Kellari: s,kph,khh,kellaritiloja |
| Huoneita | 5 h |
| Tyyppi | Omakotitalo (kiinteistö) |
| Asuintilojen pinta-ala | 132 m² |
| Pinta-alojen lisätiedot | Rakennuksen pinta-alatiedot on Digi- ja väestötietoviraston tiedoista eikä niitä ole tarkistusmitattu. |
| Kerroksia | 3 |
| Vapautuminen | sopimuksen mukaan |
| Kunto | Isoja remontteja tehty vuosien varrella. |
| Kohteen kunto | Tyydyttävä |
| Energialuokka | Ei lain edellyttämää energiatodistusta |
| Rakennusvuosi | 1960 |
| Käyttöönottovuosi | 1960 |
| Velaton hinta | 154 000 € |
|---|---|
| Myyntihinta | 154 000 € |
| Velkaosuus | - |
| Vuokrattu | Kyllä |
| Vuokra | 1 430 € / kk |
| Muut maksut/lisätietoa maksuista | |
|---|---|
| Kiinteistövero | 236,99 |
| Muut maksut | Vesi- ja jätevesimaksu kaupungin hinnaston mukaan. Hulevesimaksu 49 €/v. |
|---|
| Pihan kuvaus | Suojaisa tasainen piha, jossa grillikatos ja patio. |
|---|---|
| Lämmitys | Sähkö. |
| Lämmitysmuodot |
|
| Oma sauna | Kyllä |
| Sähköliittymä siirtyy | Kyllä |
| Antennijärjestelmä | Kaapeli-tv |
| Tehdyt remontit | - Keittiö remontoitu 2006. - Käyttövesiputket ja viemärit uusittu 2006, myös tonttiviemäri. - Ikkunat uusittu 1990-luvulla ja 2010-luvulla (yläkerta) - Salaojaremontti - Katto uusittu noin 1990-luvulla - Lisälämmöneristys keskikerroksen seiniin 1980-luvulla - Kylmä kuisti muutettu lämpöiseksi eteiseksi. - Yläkerran vinttikomero ja vinttitiloja otettu asuinkäyttöön 2000-luvulla. - Kodinhoitotila kellariin 1990-luvulla. - Tonttijohto uusittu kaupungin liittymästä. |
| Luovutusrajoitukset | AO |
| Palvelut | |
|---|---|
| Päiväkoti | Myllyhaka, Alhoniitty, Lauttala, Lähdeniitty |
| Koulu | Myllyhaan koulu, Alhoniitty |
| Palvelut | S-market 100 m, keskustan palvelut noin 2 km |
| Liikenneyhteydet | |
|---|---|
| Liikenneyhteydet | Pinsiöntiellä pysäkit, juna-asemalle noin 1,5 km |
| Tie perille | Kyllä |
| Viemäri |
|
|---|---|
| Muut säilytystilat |
|
| Säilytystilojen kuvaus | Kellarissa runsaasti säilytystilaa. |
| Muu varustelu |
|
| Tulisija |
|
| Vesihuolto |
|
| Katto | |
|---|---|
| Kate | Profiilipelti |
| Rakennusmateriaalit | |
|---|---|
| Rakennus- ja pintamateriaalien kuvaus | Lauta |
| Käytetyt rakennusmateriaalit |
|
| Keittiö | |
|---|---|
| Keittiön varustelu | Keittiö remontoitu 2006. |
| Keittiön muu varustelu |
|
| Liesi |
|
| Jääkaappi ja pakastin |
|
| Keittiön lattia |
|
| Keittiön seinät |
|
| Kylpyhuone | |
|---|---|
| Kylpyhuoneen kuvaus | Kylpyhuone remontoitu 80-luvulla |
| Kylpyhuoneen varustelu |
|
| Kylpyhuoneen lattia |
|
| Kylpyhuoneen seinät |
|
| Sauna | |
|---|---|
| Saunan kuvaus | Saunaosasto kellarissa, remontoitu 80-luvulla |
| Kiuas |
|
| Saunan lattia |
|
| Saunan seinät |
|
| Makuuhuone | |
|---|---|
| 4 | |
| Makuuhuoneen lattia |
|
| Makuuhuoneen seinät |
|
| Olohuone | |
|---|---|
| Olohuoneen lattia |
|
| Olohuoneen seinät |
|
| Pesutilat | |
|---|---|
| Pesutilojen lattia |
|
| Lisätietoja rakennusoikeudesta | 180 k-m2 + 40 k-m2 |
|---|---|
| Koko | 863 m² |
| Omistus | Oma |
| Kaavoitustilanne |
|
| Kiinteistötunnus | 536-4-27-9 |
| Rakennukset |
|
| Esittelyaika | 08.02. 13:45 - 14:15 |
|---|---|
| Esittelijä | Saikkonen Jutta |
| p. | 045 1526191 |
| Sähköposti | jutta@jks-lkv.fi |
| yleisesittely |

| Nimi | Saikkonen Jutta |
|---|---|
| Sähköposti | jutta@jks-lkv.fi |
| Puhelin | 045 152 6191 |
| Yrityksen nimi | JKS-Kiinteistönvälitys LKV Oy |
| Toimiston nimi | JKS-Kiinteistönvälitys LKV Oy |
| Yrityksen nimi | JKS-Kiinteistönvälitys LKV Oy |
|---|---|
| Toimiston nimi | JKS-Kiinteistönvälitys LKV Oy |
| Osoite | Ilvankatu 11 D 23, Nokia |
| Toimiston puhelin | 0451526191 |
| Toimiston sähköposti | jutta@jks-lkv.fi |